



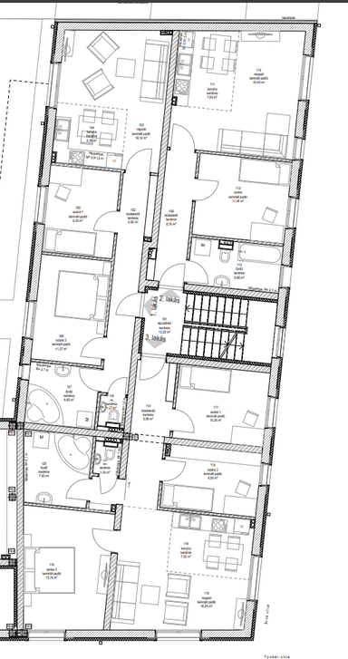
Első emeleti lakások a Platánházban Szegeden
🏠 1. lakás
Ez a lakás két hálószobás, külön fürdővel és WC-vel, tágas nappalival és jól szeparált konyhával rendelkezik. Ideális kiscsaládosoknak vagy pároknak.






| Megnevezés | Burkolat | Terület (m²) |
|---|---|---|
| Közlekedő | Kerámia | 9.92 |
| Nappali | Laminált padló | 16.12 |
| Konyha | Kerámia | 6.39 |
| Szoba 1 | Laminált padló | 9.35 |
| Szoba 2 | Laminált padló | 11.27 |
| Fürdő | Kerámia | 6.60 |
| WC | Kerámia | 1.27 |
| Összesen | 60.92 | |
🏠 1.lakás Két lakásra bontása: 1.1 kislakás
A képen pirosan van jelölve. A lakás 1 hálószobából, egy kis konyhából, és egy fürdőszobából áll

| Megnevezés | Burkolat | Terület (m²) |
|---|---|---|
| Folyosó | Kerámia | 4.27 |
| Hálószoba | Laminált padló | 18.10 |
| Konyha | Laminált padló | 1.93 |
| Fürdőszoba | Kerámia | 5.33 |
| Összesen | 29.63 | |
🏠 1.lakás Két lakásra bontása: 1.2 kislakás
A képen kékkel van jelölve. A lakás egy hálószobából egy nappaliból, egy kis konyhából, és egy fürdőszobából áll külön WC-vel.

| Megnevezés | Burkolat | Terület (m²) |
|---|---|---|
| Közlekedő | Kerámia | 3.03 |
| Nappali | Laminált padló | 9.42 |
| Hálószoba | Laminált padló | 9.35 |
| Konyha | Kerámia | 1.57 |
| Fürdő | Kerámia | 6.60 |
| WC | Kerámia | 1.61 |
| Összesen | 31.58 | |
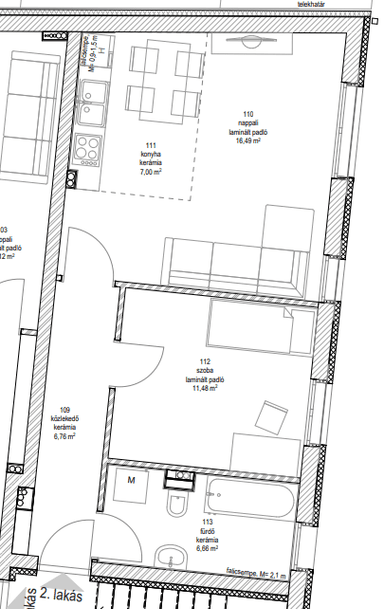
🏠 2. lakás
Egy hálószobás lakás, külön nappalival és nagy konyhával. Tökéletes választás egyedülállóknak, fiatal pároknak vagy befektetésnek.






| Megnevezés | Burkolat | Terület (m²) |
|---|---|---|
| Közlekedő | Kerámia | 6.76 |
| Nappali | Laminált padló | 16.49 |
| Konyha | Kerámia | 7.00 |
| Szoba | Laminált padló | 11.48 |
| Fürdő | Kerámia | 6.66 |
| Összesen | 48.39 | |
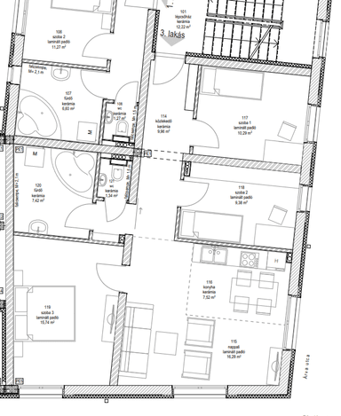
🏠 3.lakás
Három hálószobás lakás, külön fürdő és WC helyiségekkel, nagy nappali és tágas konyha. Ideális nagycsaládosok számára.






| Megnevezés | Burkolat | Terület (m²) |
|---|---|---|
| Közlekedő | Kerámia | 9.96 |
| Nappali | Laminált padló | 16.29 |
| Konyha | Kerámia | 7.52 |
| Szoba 1 | Laminált padló | 10.29 |
| Szoba 2 | Laminált padló | 9.38 |
| Szoba 3 | Laminált padló | 15.74 |
| Fürdő | Kerámia | 7.42 |
| WC | Kerámia | 1.34 |
| Összesen | 77.94 | |
🏠 3.lakás Két lakásra bontása: 3.1 kislakás
A képen pirossal jelölt, egy hálószobás lakás, külön fürdő és WC helyiségekkel, nagy nappalival és egy kis konyhával.

| Megnevezés | Burkolat | Terület (m²) |
|---|---|---|
| Nappali | Laminált padló | 20.30 |
| Konyha | Kerámia | 3.41 |
| Közlekedő | Kerámia | 1.38 |
| Hálószoba | Laminált padló | 14.60 |
| Fürdő | Kerámia | 7.49 |
| WC | Kerámia | 1.57 |
| Összesen | 48.75 | |
🏠 3.lakás Két lakásra bontása: 3.2 kislakás
A képen kékkel van jelölve, egy hálószobás lakás, egy fürdőszobával, egy nappalival és egy kis konyhával.

| Megnevezés | Burkolat | Terület (m²) |
|---|---|---|
| Nappali | Laminált padló | 7.70 |
| Konyha | Kerámia | 1.74 |
| Hálószoba | Laminált padló | 7.84 |
| Fürdőszoba | Kerámia | 5.39 |
| Összesen | 22.67 | |
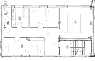
🏢 Iroda blokk
Két különálló iroda, közös Előtérrel, mosdóval és nagy méretű tárolóhelyiséggel. Ideális megosztott irodai használatra vagy coworking célra.





| Megnevezés | Burkolat | Terület (m²) |
|---|---|---|
| Iroda 1 | Kerámia | 15.31 |
| Iroda 2 | Kerámia | 19.46 |
| Tároló | Kerámia | 27.64 |
| Előtér | Kerámia | 2.68 |
| WC | Kerámia | 1.13 |
| Összesen | 66.22 | |
🏢 Iroda blokk 3 lakásra bontás 3.1 Lakás
A képen kékkel van jelölve. Egy nappaliból, egy hálószóbából és egy fürdőszobából álló a lakás





| Megnevezés | Burkolat | Terület (m²) |
|---|---|---|
| Nappali | Laminált padló | 16.10 |
| Konyha | Kerámia | 2.35 |
| Hálószoba | Laminált padló | 11.80 |
| Fürdőszoba | Kerámia | 6.55 |
| Összesen | 36.80 | |
🏢 Iroda blokk 3 lakásra bontás 3.2 Lakás
A képen pirosan van jelölve. Egy nappaliból, egy hálószóbából,egy kis konyhából és egy fürdőszobából álló lakás





| Megnevezés | Burkolat | Terület (m²) |
|---|---|---|
| Nappali | Laminált padló | 10.50 |
| Konyha | Kerámia | 2.28 |
| Hálószoba | Laminált padló | 9.02 |
| Fürdőszoba | Kerámia | 4.89 |
| Összesen | 26.69 | |
🏢 Iroda blokk 3 lakásra bontás 3.3 Lakás
A képen zölddel van jelölve. Egy nappaliból,egy kis konyhából és egy fürdőszobából álló lakás





| Megnevezés | Burkolat | Terület (m²) |
|---|---|---|
| Nappali | Laminált padló | 16.10 |
| Konyha | Kerámia | 2.72 |
| Fürdőszoba | Kerámia | 8.09 |
| Összesen | 26.91 | |
