



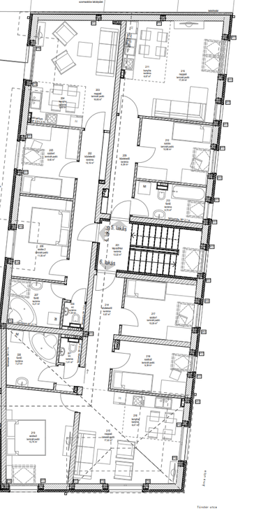
Második emeleti lakások a Platánházban Szegeden
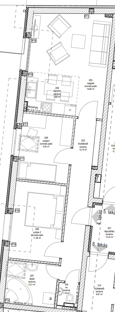
🏠 4. lakás
Két hálószobás lakás világos nappalival, külön fürdővel és WC-vel. Ideális fiatal pároknak vagy befektetési célra.






| Megnevezés | Burkolat | Terület (m²) |
|---|---|---|
| Közlekedő | Kerámia | 10.19 |
| Nappali | Laminált padló | 16.80 |
| Konyha | Kerámia | 5.69 |
| Szoba 1 | Laminált padló | 9.45 |
| Szoba 2 | Laminált padló | 11.06 |
| Fürdő | Kerámia | 6.21 |
| WC | Kerámia | 1.34 |
| Összesen | 60.74 | |
🏠 4.lakás Két lakásra bontása: 4.1 kislakás
A képen pirosan van jelölve. A lakás 1 hálószobából, egy kis konyhából, és egy fürdőszobából áll

| Megnevezés | Burkolat | Terület (m²) |
|---|---|---|
| Folyosó | Kerámia | 4.27 |
| Hálószoba | Laminált padló | 18.10 |
| Konyha | Laminált padló | 1.93 |
| Fürdőszoba | Kerámia | 5.33 |
| Összesen | 29.63 | |
🏠 4.lakás Két lakásra bontása: 4.2 kislakás
A képen kékkel van jelölve. A lakás egy hálószobából egy nappaliból, egy kis konyhából, és egy fürdőszobából áll külön WC-vel.

| Megnevezés | Burkolat | Terület (m²) |
|---|---|---|
| Közlekedő | Kerámia | 3.03 |
| Nappali | Laminált padló | 9.42 |
| Hálószoba | Laminált padló | 9.35 |
| Konyha | Kerámia | 1.57 |
| Fürdő | Kerámia | 6.60 |
| WC | Kerámia | 1.61 |
| Összesen | 31.58 | |
🏠 5. lakás
Egy hálószobás lakás, praktikus elrendezéssel, tágas nappalival. Alkalmas egyedülállóknak vagy pároknak.






| Megnevezés | Burkolat | Terület (m²) |
|---|---|---|
| Közlekedő | Kerámia | 6.39 |
| Nappali | Laminált padló | 17.49 |
| Konyha | Kerámia | 6.67 |
| Szoba | Laminált padló | 10.98 |
| Fürdő | Kerámia | 6.70 |
| Összesen | 48.23 | |
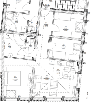
🏠 6. lakás
Három hálószobás lakás, kényelmes tágas elosztással, külön fürdővel és WC-vel. Ideális nagycsaládosok számára.






| Megnevezés | Burkolat | Terület (m²) |
|---|---|---|
| Közlekedő | Kerámia | 9.97 |
| Nappali | Laminált padló | 17.32 |
| Konyha | Kerámia | 6.47 |
| Szoba 1 | Laminált padló | 10.29 |
| sSoba 2 | Laminált padló | 9.39 |
| Szoba 3 | Laminált padló | 15.74 |
| Fürdő | Kerámia | 7.27 |
| WC | Kerámia | 1.41 |
| Összesen | 77.86 | |
🏠 6.lakás Két lakásra bontása: 6.1 kislakás
A képen pirossal jelölt, egy hálószobás lakás, külön fürdő és WC helyiségekkel, nagy nappalival és egy kis konyhával.

| Megnevezés | Burkolat | Terület (m²) |
|---|---|---|
| Nappali | Laminált padló | 20.30 |
| Konyha | Kerámia | 3.41 |
| Közlekedő | Kerámia | 1.38 |
| Hálószoba | Laminált padló | 14.60 |
| Fürdő | Kerámia | 7.49 |
| WC | Kerámia | 1.57 |
| Összesen | 48.75 | |
🏠 6.lakás Két lakásra bontása: 6.2 kislakás
A képen kékkel van jelölve, egy hálószobás lakás, egy fürdőszobával, egy nappalival és egy kis konyhával.

| Megnevezés | Burkolat | Terület (m²) |
|---|---|---|
| Nappali | Laminált padló | 7.70 |
| Konyha | Kerámia | 1.74 |
| Hálószoba | Laminált padló | 7.84 |
| Fürdőszoba | Kerámia | 5.39 |
| Összesen | 22.67 | |
🏢 Második emeleti iroda blokk 3 lakásra bontás 3.1 Lakás
A képen kékkel van jelölve. Egy nappaliból, egy hálószóbából, egy fürdőszobából és egy kis gardrobból álló a lakás





| Megnevezés | Burkolat | Terület (m²) |
|---|---|---|
| Nappali | Laminált padló | 13.20 |
| Hálószoba | Laminált padló | 10.20 |
| Fürdőszoba | Kerámia | 3.13 |
| Gardrob | Kerámia | 1.91 |
| Összesen | 28.44 | |
🏢 Második emeleti iroda blokk 3 lakásra bontás 3.2 Lakás
A képen pirosan van jelölve. Egy nappaliból, egy hálószóbából,egy kis konyhából és egy fürdőszobából álló lakás





| Megnevezés | Burkolat | Terület (m²) |
|---|---|---|
| Nappali | Laminált padló | 10.20 |
| Hálószoba | Laminált padló | 6.85 |
| Konyha | Laminált padló | 1.21 |
| Fürdőszoba | Kerámia | 3.85 |
| Összesen | 22.11 | |
🏢 Második emeleti iroda blokk 3 lakásra bontás 3.3 Lakás
A képen zölddel van jelölve. Egy nappaliból, egy hálószóbából, egy fürdőszobából álló lakás





| Megnevezés | Burkolat | Terület (m²) |
|---|---|---|
| Nappali | Laminált padló | 14.90 |
| Hálószoba | Laminált padló | 7.26 |
| Fürdőszoba | Kerámia | 3.75 |
| Összesen | 25.91 | |
